ID CP2849490

Apartament 3 Camere | 64 mp | Curte 60 mp | Parcare | Terra Floresti

Această proprietate nu mai este activă,
te invităm să vizualizezi proprietăți similare

ID CP2849490

115,000 €

Apartament cu 3 camere de vânzare
Terra, Floresti
64.23 mp
2012

ID: OFC 2849490

Oferta in Reprezentare Exclusiva cu Comision 0% pentru cumparator.

Va oferim spre vanzare un apartament de 3 camere semidecomandat, situat in zona Terra, mai exact pe strada Sesul de Sus.

Proprietatea este ideala pentru o familie care isi doreste confort, intimitate, si acces facil catre toate punctele de interes din zona.

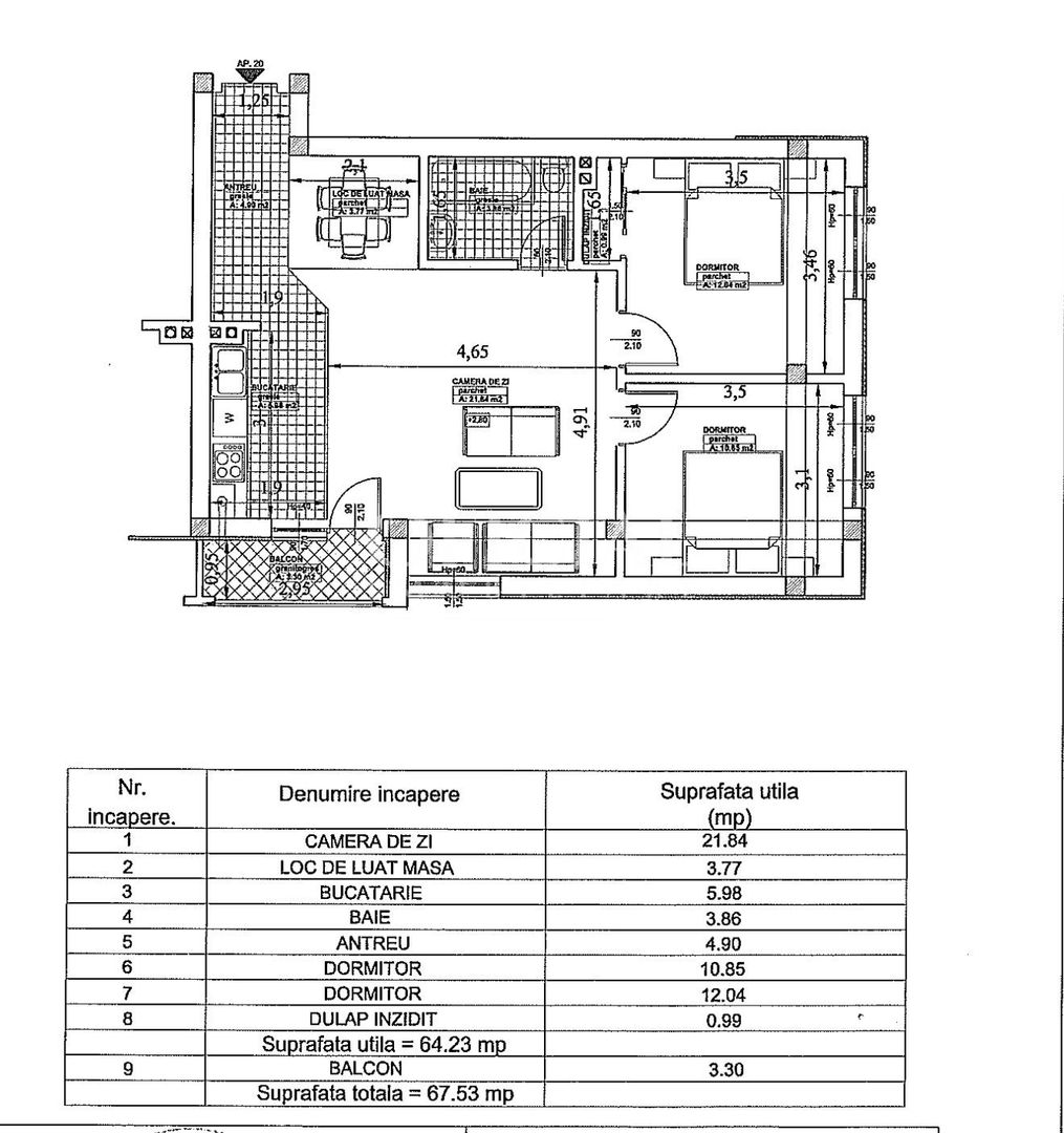
Locuinta are o suprafata utila de 64,23 mp si este compartimentata astfel:

- 1 living spatios impreuna cu bucataria si cu iesire in curte

- 2 dormitoare

- 1 baie

- 1 hol de acces

- 1 balcon de 3,30 mp

Curtea are o suprafata de aproximativ 60 mp, este amenajata, contine si un foisor, spatiu verde, fiind ideala pentru relaxare sau momente petrecute impreuna cu familia si prietenii.

Apartamentul se vinde partial mobilat, utilat si cu un loc de parcare exterior, inclus in pretul afisat.

Confortul termic este asigurat de centrala termica proprie si izolatia exterioara, iar la nivelul finisajelor regasim: parchet, geamuri termopan, gresie, faianta, aer conditionat, usa de metal la intare, vopsea lavabila, etc.

Proprietatea este amplasta in imediata vecinatate a multor puncte majore de interes: statie de autobuz, gradinita, supermarket, diferite magazine, farmacie, cabinete medicale, restaurante, etc.

Pentru mai multe detalii sau programarea unei vizionari, nu ezitati sa ne contactati!

ID: OFC 2849490

Citește mai mult

  • Tip apartament
    Apartament
  • Compartimentare
    Semidecomandat
  • Număr camere
    3
  • Număr bucătării
    1
  • Număr băi
    1
  • Etaj
    Parter
  • Suprafață utilă
    64.23 mp
  • Suprafață construită
    75 mp
  • Suprafață curte
    60 mp
  • Disponibilitate
    Imediat
  • Orientare
    Nord-Est
  • Confort
    1
  • Stare interior
    Bună
  • Număr balcoane
    1
  • Număr locuri parcare
    1
  • Imobil
    Bloc de apart.
  • Stadiu construcție
    Finalizată
  • An construcție
    2012
  • Construcție nouă
    Da
  • Tip construcție
    Cărămidă
  • Număr etaje clădire
    4

Facilități

Aer condiționat
Apă
Apometre
Aragaz
Bucătărie deschisă
Bucătărie mobilată
Bucătărie utilată
Cadă
Calorifere
Canalizare
CATV
Centrală proprie
Contor electric
Contor gaz
Curent
Duș exterior
Faianță
Frigider
Gaz
Geamuri termopan
Gresie
Hotă
Iluminat stradal
Interfon
Internet
Izolație exterioară
Mașină de spălat rufe
Mașină de spălat vase
Mijloace de transport în comun
Mobilat parțial
Parchet
Străzi asfaltate
Telefon
TV
Ușă intrare metal
Uși interior lemn
Vopsea lavabilă
Necesare:

Site-ul nu poate funcționa corect fără aceste cookie-uri. Vezi cookie-urile

Statistică:

Strângem statistici anonime despre voi, vizitatorii unici, pentru a vă îmbunătăți experiența dumneavoastră. Vezi cookie-urile

Marketing:

Pentru a ne promova mai eficient serviciile noastre, folosim cookies pentru a vă identifica și a vă oferi proprietăți și servicii personalizate. Vezi cookie-urile

Acest site folosește cookies, află detalii. Alege ce tipuri de cookies dorești să permitem: